Multi Pattern Design (M.P.D.)

Multi Pattern Design (M.P.D.)

Multi Pattern Design (M.P.D.)

The Multi Pattern Design (M.P.D.) is a project designed to allow combination of multiple size patterns and therefore develop creative and original outdoor design solutions. M.P.D. project is available in three different versions:M.P.D. Big, M.P.D. Small,M.P.D. Mini.

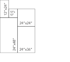
M.P.D. BIG ONE*

Module percentage
  • 24”x48” = 40%
  • 24”x24” = 20%
  • 24”x36” + 12”x24” (MIX) = 40% **
  • * Modular products with 6 mm joint (approx 1/4”).
  • ** NOTE: The 24”x36” and 12”x24” sizes (MIX) are palletized together on the same single pallet containing the correct percentages of each size.
Available colors
Bluestone Blue Select
Bluestone Full color
Travertine Cross Cut White
Travertine Cross Cut Cream
Travertine Cross Cut Silver
Limestone
Michelangelo Extra White
Arctic White
African Beige
Star Grey
Indiana Buff Select
Indiana Grey Select
Montauk White
Montauk Grey
Montauk Black

M.P.D. BIG TWO*

Module percentage
  • 24”x48” = 50%
  • 24”x36” + 12”x24” (MIX) = 50% **
  • * Modular products with 6 mm joint (approx 1/4”).
  • ** NOTE: The 24”x36” and 12”x24” sizes (MIX) are palletized together on the same single pallet containing the correct percentages of each size.
Available colors
Bluestone Blue Select
Bluestone Full color
Travertine Cross Cut White
Travertine Cross Cut Cream
Travertine Cross Cut Silver
Limestone
Michelangelo Extra White
Arctic White
African Beige
Star Grey
Indiana Buff Select
Indiana Grey Select
Montauk White
Montauk Grey
Montauk Black

M.P.D. BIG THREE*

Module percentage
  • 24”x48” = 40%
  • 24”x24” = 20%
  • 24”x36” + 12”x24” (MIX) = 40% **
  • * Modular products with 6 mm joint (approx 1/4”).
  • ** NOTE: The 24”x36” and 12”x24” sizes (MIX) are palletized together on the same single pallet containing the correct percentages of each size
Available colors
Bluestone Blue Select
Bluestone Full color
Travertine Cross Cut White
Travertine Cross Cut Cream
Travertine Cross Cut Silver
Limestone
Michelangelo Extra White
Arctic White
African Beige
Star Grey
Indiana Buff Select
Indiana Grey Select
Montauk White
Montauk Grey
Montauk Black

M.P.D. BIG FOUR*

Module percentage
  • 24”x48” = 28.6%
  • 24”x24” = 14.3%
  • 24”x36” + 12”x24” (MIX) = 57.1% **
  • * Modular products with 6 mm joint (approx 1/4”).
  • ** NOTE: The 24”x36” and 12”x24” sizes (MIX) are palletized together on the same single pallet containing the correct percentages of each size.
Available colors
Bluestone Blue Select
Bluestone Full color
Travertine Cross Cut White
Travertine Cross Cut Cream
Travertine Cross Cut Silver
Limestone
Michelangelo Extra White
Arctic White
African Beige
Star Grey
Indiana Buff Select
Indiana Grey Select
Montauk White
Montauk Grey
Montauk Black

M.P.D. BIG FIVE*

Module percentage
  • % HP1
  • 24”x24” = 33%
  • 24”x36” + 12”x24” (MIX) = 67% **
  •  
  • % HP2
  • 24”x36”= 50%
  • 24”x24” = 33%
  • 12”x24”= 17%
  • * Modular products with 6 mm joint (approx 1/4”).
  • ** NOTE: The 24”x36” and 12”x24” sizes (MIX) are palletized together on the same single pallet containing the correct percentages of each size.
Available colors HP1
Bluestone Blue Select
Bluestone Full color
Travertine Cross Cut White
Travertine Cross Cut Cream
Travertine Cross Cut Silver
Limestone
Michelangelo Extra White
Arctic White
African Beige
Star Grey
Indiana Buff Select
Indiana Grey Select
Montauk White
Montauk Grey
Montauk Black
Available colors HP2
Thermal Bluestone Blue Select
Thermal Bluestone Full Color

M.P.D. BIG SIX*

Module percentage
  • % HP1
  • 24”x24” = 45%
  • 12”x12”= 11%
  • 24”x36” + 12”x24” (MIX) = 44% **
  •  
  • % HP2
  • 24”x36”= 33%
  • 24”x24” = 45%
  • 12”x24”= 11%
  • 12”x12”= 11%
  • * Modular products with 6 mm joint (approx 1/4”).
  • ** NOTE: The 24”x36” and 12”x24” sizes (MIX) are palletized together on the same single pallet containing the correct percentages of each size.
Available colors HP1
Bluestone Blue Select
Bluestone Full color
Travertine Cross Cut White
Travertine Cross Cut Cream
Travertine Cross Cut Silver
Limestone
Michelangelo Extra White
Arctic White
African Beige
Star Grey
Indiana Buff Select
Indiana Grey Select
Montauk White
Montauk Grey
Montauk Black
Available colors HP2
Thermal Bluestone Blue Select
Thermal Bluestone Full Color

M.P.D. BIG SEVEN*

Module percentage
  • % HP1
  • 24”x24” = 31%
  • 12”x12”= 8%
  • 24”x36” + 12”x24” (MIX) = 61% **
  •  
  • % HP2
  • 24”x36”= 46%
  • 24”x24” = 31%
  • 12”x24”= 15%
  • 12”x12”= 8%
  • * Modular products with 6 mm joint (approx 1/4”).
  • ** NOTE: The 24”x36” and 12”x24” sizes (MIX) are palletized together on the same single pallet containing the correct percentages of each size.
Available colors HP1
Bluestone Blue Select
Bluestone Full color
Travertine Cross Cut White
Travertine Cross Cut Cream
Travertine Cross Cut Silver
Limestone
Michelangelo Extra White
Arctic White
African Beige
Star Grey
Indiana Buff Select
Indiana Grey Select
Montauk White
Montauk Grey
Montauk Black
Available colors HP2
Thermal Bluestone Blue Select
Thermal Bluestone Full Color

M.P.D. BIG EIGHT*

Module percentage
  • % HP1
  • 24”x24” = 40%
  • 12”x12”= 7%
  • 24”x36” + 12”x24” (MIX) = 53% **
  •  
  • % HP2
  • 24”x36”= 40%
  • 24”x24” = 40%
  • 12”x24”= 13%
  • 12”x12”= 7%
  • * Modular products with 6 mm joint (approx 1/4”).
  • ** NOTE: The 24”x36” and 12”x24” sizes (MIX) are palletized together on the same single pallet containing the correct percentages of each size.
Available colors HP1
Bluestone Blue Select
Bluestone Full color
Travertine Cross Cut White
Travertine Cross Cut Cream
Travertine Cross Cut Silver
Limestone
Michelangelo Extra White
Arctic White
African Beige
Star Grey
Indiana Buff Select
Indiana Grey Select
Montauk White
Montauk Grey
Montauk Black
Available colors HP2
Thermal Bluestone Blue Select
Thermal Bluestone Full Color

M.P.D. BIG NINE*

Module percentage
  • 24”x48”= 58%
  • 12”x48”= 14%
  • 24”x24” = 14%
  • 12”x24” = 7%
  • 12”x12”= 7%
  • * Modular products with 6 mm joint (approx 1/4”).
Available colors
Bluestone Blue Select
Bluestone Full color
Travertine Cross Cut White
Travertine Cross Cut Cream
Travertine Cross Cut Silver
Limestone
Michelangelo Extra White
Arctic White
African Beige
Star Grey
Indiana Buff Select
Indiana Grey Select
Montauk White
Montauk Grey
Montauk Black

M.P.D. BIG TEN*

Module percentage
  • 24”x48”= 58%
  • 12”x48”= 14%
  • 24”x24”= 14%
  • 12”x24”= 14%
  • * Modular products with 6 mm joint (approx 1/4”)
Available colors
Bluestone Blue Select
Bluestone Full color
Travertine Cross Cut White
Travertine Cross Cut Cream
Travertine Cross Cut Silver
Limestone
Michelangelo Extra White
Arctic White
African Beige
Star Grey
Indiana Buff Select
Indiana Grey Select
White Avenue
Cosmopolitan Ash
Fashion Black
Montauk White
Montauk Grey
Montauk Black

M.P.D. BIG ELEVEN*

Module percentage
  • 24”x48”= 31%
  • 12”x48”= 15%
  • 24”x24” = 31%
  • 12”x24”= 15%
  • 12”x12”= 8%
  • * Modular products with 6 mm joint (approx 1/4”)
Available colors
Bluestone Blue Select
Bluestone Full color
Travertine Cross Cut White
Travertine Cross Cut Cream
Travertine Cross Cut Silver
Limestone
Michelangelo Extra White
Arctic White
African Beige
Star Grey
Indiana Buff Select
Indiana Grey Select
Montauk White
Montauk Grey
Montauk Black

M.P.D. BIG TWELVE*

Module percentage
  • 24”x48”= 22%
  • 12”x48”= 45%
  • 24”x24”= 22%
  • 12”x24”= 11%
  • * Modular products with 6 mm joint (approx 1/4”)
Available colors
Bluestone Blue Select
Bluestone Full color
Travertine Cross Cut White
Travertine Cross Cut Cream
Travertine Cross Cut Silver
Limestone
Michelangelo Extra White
Arctic White
African Beige
Star Grey
Vintage Slab
Indiana Buff Select
Indiana Grey Select
Montauk White
Montauk Grey
Montauk Black

M.P.D. BIG THIRTEEN*

Module percentage
  • 24”x48”= 62%
  • 12”x48”= 30%
  • 12”x12”= 8%
  • * Modular products with 6 mm joint (approx 1/4”)
Available colors
Bluestone Blue Select
Bluestone Full color
Travertine Cross Cut White
Travertine Cross Cut Cream
Travertine Cross Cut Silver
Limestone
Michelangelo Extra White
Arctic White
African Beige
Star Grey
Indiana Buff Select
Indiana Grey Select
Montauk White
Montauk Grey
Montauk Black

M.P.D. BIG FOURTEEN*

Module percentage
  • 24”x48”= 67%
  • 12”x48”= 33%
  • * Modular products with 6 mm joint (approx 1/4”)
Available colors
Bluestone Blue Select
Bluestone Full color
Travertine Cross Cut White
Travertine Cross Cut Cream
Travertine Cross Cut Silver
Limestone
Michelangelo Extra White
Arctic White
African Beige
Star Grey
Indiana Buff Select
Indiana Grey Select
White Avenue
Cosmopolitan Ash
Fashion Black
Montauk White
Montauk Grey
Montauk Black

M.P.D. BIG FIFTEEN*

Module percentage
  • 24”x48”= 38%
  • 12”x48”= 19%
  • 24”x24”= 19%
  • 12”x24”= 19%
  • 12”x12”= 5%
  • * Modular products with 6 mm joint (approx 1/4”)
Available colors
Bluestone Blue Select
Bluestone Full color
Travertine Cross Cut White
Travertine Cross Cut Cream
Travertine Cross Cut Silver
Limestone
Michelangelo Extra White
Arctic White
African Beige
Star Grey
Indiana Buff Select
Indiana Grey Select
Montauk White
Montauk Grey
Montauk Black

M.P.D. BIG SIXTEEN*

Module percentage
  • 24”x48”= 31%
  • 24”x24”= 31%
  • 12”x24”= 23%
  • 12”x12”= 15%
  • * Modular products with 6 mm joint (approx 1/4”)
Available colors
Bluestone Blue Select
Bluestone Full color
Travertine Cross Cut White
Travertine Cross Cut Cream
Travertine Cross Cut Silver
Limestone
Michelangelo Extra White
Arctic White
African Beige
Star Grey
Indiana Buff Select
Indiana Grey Select
Montauk White
Montauk Grey
Montauk Black

M.P.D. BIG SEVENTEEN*

Module percentage
  • 24”x48”= 33,5%
  • 12”x48”= 33,5%
  • 24”x24”= 17%
  • 12”x24”= 8%
  • 12”x12”= 8%
  • * Modular products with 6 mm joint (approx 1/4”)
Available colors
Bluestone Blue Select
Bluestone Full color
Travertine Cross Cut White
Travertine Cross Cut Cream
Travertine Cross Cut Silver
Limestone
Michelangelo Extra White
Arctic White
African Beige
Star Grey
Indiana Buff Select
Indiana Grey Select
Montauk White
Montauk Grey
Montauk Black

M.P.D. BIG EIGHTEEN*

Module percentage
  • 24”x48”= 50%
  • 12”x48”= 50%
  • * Modular products with 6 mm joint (approx 1/4”)
Available colors
Bluestone Blue Select
Bluestone Full color
Travertine Cross Cut White
Travertine Cross Cut Cream
Travertine Cross Cut Silver
Limestone
Michelangelo Extra White
Arctic White
African Beige
Star Grey
Indiana Buff Select
Indiana Grey Select
Montauk White
Montauk Grey
Montauk Black

M.P.D. BIG NINETEEN*

Module percentage
  • 24”x48” = 38%
  • 24”x24” = 19%
  • 12”x12” = 5%
  • 24”x36” + 12”x24” (MIX) = 38% **
  • * Modular products with 6 mm joint (approx 1/4”).
  • ** NOTE: The 24”x36” and 12”x24” sizes (MIX) are palletized together on the same single pallet containing the correct percentages of each size.
Available colors
Bluestone Blue Select
Bluestone Full color
Travertine Cross Cut White
Travertine Cross Cut Cream
Travertine Cross Cut Silver
Limestone
Michelangelo Extra White
Arctic White
African Beige
Star Grey
Indiana Buff Select
Indiana Grey Select
Montauk White
Montauk Grey
Montauk Black

M.P.D. BIG TWENTY*

Module percentage
  • % HP1
  • 24”x24” = 18%
  • 12”x12” = 4%
  • 24”x36” + 12”x24” (MIX) = 78% **
  • % HP2
  • 24”x36”= 52%
  • 24”x24” = 18%
  • 12”x24”= 26%
  • 12”x12”= 4%
  • * Modular products with 6 mm joint (approx 1/4”).
  • ** NOTE: The 24”x36” and 12”x24” sizes (MIX) are palletized together on the same single pallet containing the correct percentages of each size.
Available colors HP1
Bluestone Blue Select
Bluestone Full color
Travertine Cross Cut White
Travertine Cross Cut Cream
Travertine Cross Cut Silver
Limestone
Michelangelo Extra White
Arctic White
African Beige
Star Grey
Indiana Buff Select
Indiana Grey Select
Montauk White
Montauk Grey
Montauk Black
Available colors HP2
Thermal Bluestone Blue Select
Thermal Bluestone Full Color

M.P.D. SMALL ONE*

Module percentage
  • 12”x24” = 67%
  • 12”x12” = 33%
  • * Modular products with 4 mm joint (approx 5/32”).
Available colors
Bluestone Blue Select
Bluestone Full color
Thermal Bluestone Blue Select
Thermal Bluestone Full Color
Travertine Cross Cut White
Travertine Cross Cut Cream
Travertine Cross Cut Silver
Limestone
Michelangelo Extra White
Arctic White
African Beige
Star Grey
Indiana Buff Select
Indiana Grey Select
Indiana Variegated
California Gold
Rustic Gold
Montauk White
Montauk Grey
Montauk Black
Travertine Cross Cut Scabas
Travertine Cross Cut Philadelphia
Travertine Cross Cut Country Classic

M.P.D. SMALL TWO*

Module percentage
  • 12”x24” = 80%
  • 12”x12” = 20%
  • * Modular products with 4 mm joint (approx 5/32”).
Available colors
Bluestone Blue Select
Bluestone Full color
Thermal Bluestone Blue Select
Thermal Bluestone Full Color
Travertine Cross Cut White
Travertine Cross Cut Cream
Travertine Cross Cut Silver
Limestone
Michelangelo Extra White
Arctic White
African Beige
Star Grey
Indiana Buff Select
Indiana Grey Select
Indiana Variegated
California Gold
Rustic Gold
Montauk White
Montauk Grey
Montauk Black
Travertine Cross Cut Scabas
Travertine Cross Cut Philadelphia
Travertine Cross Cut Country Classic

M.P.D. SMALL THREE*

Module percentage
  • 24”x24” = 50%
  • 12”x24” = 50%
  • * Modular products with 4 mm joint (approx 5/32”).
Available colors
Bluestone Blue Select
Bluestone Full color
Thermal Bluestone Blue Select
Thermal Bluestone Full Color
Travertine Cross Cut White
Travertine Cross Cut Cream
Travertine Cross Cut Silver
Limestone
Michelangelo Extra White
Arctic White
African Beige
Star Grey
Vintage Slab
Barge Gold
Silver Quartz
Diamond White
Fashion Grey
Indiana Buff Select
Indiana Grey Select
Indiana Variegated
California Gold
Rustic Gold
Montauk White
Montauk Grey
Montauk Black
Travertine Cross Cut Scabas
Travertine Cross Cut Philadelphia
Travertine Cross Cut Country Classic

M.P.D. SMALL FOUR*

Module percentage
  • 24”x24” = 67%
  • 12”x24” = 33%
  • * Modular products with 4 mm joint (approx 5/32”).
Available colors
Bluestone Blue Select
Bluestone Full color
Thermal Bluestone Blue Select
Thermal Bluestone Full Color
Travertine Cross Cut White
Travertine Cross Cut Cream
Travertine Cross Cut Silver
Limestone
Michelangelo Extra White
Arctic White
African Beige
Star Grey
Vintage Slab
Barge Gold
Silver Quartz
Diamond White
Fashion Grey
Indiana Buff Select
Indiana Grey Select
Indiana Variegated
California Gold
Rustic Gold
Montauk White
Montauk Grey
Montauk Black
Travertine Cross Cut Scabas
Travertine Cross Cut Philadelphia
Travertine Cross Cut Country Classic

M.P.D. SMALL FIVE*

Module percentage
  • 24”x24” = 57%
  • 12”x24” = 29%
  • 12”x12” = 14%
  • * Modular products with 6 mm joint (approx 1/4”).
Available colors
Bluestone Blue Select
Bluestone Full color
Thermal Bluestone Blue Select
Thermal Bluestone Full Color
Travertine Cross Cut White
Travertine Cross Cut Cream
Travertine Cross Cut Silver
Limestone
Michelangelo Extra White
Arctic White
African Beige
Star Grey
Indiana Buff Select
Indiana Grey Select
Indiana Variegated
California Gold
Rustic Gold
Montauk White
Montauk Grey
Montauk Black
Travertine Cross Cut Scabas
Travertine Cross Cut Philadelphia
Travertine Cross Cut Country Classic

M.P.D. SMALL SIX*

Module percentage
  • 24”x24” = 33%
  • 12”x24” = 50%
  • 12”x12” = 17%
  • * Modular products with 6 mm joint (approx 1/4”).
Available colors
Bluestone Blue Select
Bluestone Full color
Thermal Bluestone Blue Select
Thermal Bluestone Full Color
Travertine Cross Cut White
Travertine Cross Cut Cream
Travertine Cross Cut Silver
Limestone
Michelangelo Extra White
Arctic White
African Beige
Star Grey
Indiana Buff Select
Indiana Grey Select
Indiana Variegated
California Gold
Rustic Gold
Montauk White
Montauk Grey
Montauk Black
Travertine Cross Cut Scabas
Travertine Cross Cut Philadelphia
Travertine Cross Cut Country Classic

M.P.D. SMALL SEVEN*

Module percentage
  • 24”x24” = 57%
  • 12”x24” = 29%
  • 12”x12” = 14%
  • * Modular products with 6 mm joint (approx 1/4”)
Available colors
Bluestone Blue Select
Bluestone Full color
Thermal Bluestone Blue Select
Thermal Bluestone Full Color
Travertine Cross Cut White
Travertine Cross Cut Cream
Travertine Cross Cut Silver
Limestone
Michelangelo Extra White
Arctic White
African Beige
Star Grey
Indiana Buff Select
Indiana Grey Select
Indiana Variegated
California Gold
Rustic Gold
Montauk White
Montauk Grey
Montauk Black
Travertine Cross Cut Scabas
Travertine Cross Cut Philadelphia
Travertine Cross Cut Country Classic

M.P.D. SMALL EIGHT*

Module percentage
  • 24”x24” = 44%
  • 12”x24” = 45%
  • 12”x12” = 11%
  • * Modular products with 6 mm joint (approx 1/4”)
Available colors
Bluestone Blue Select
Bluestone Full color
Thermal Bluestone Blue Select
Thermal Bluestone Full Color
Travertine Cross Cut White
Travertine Cross Cut Cream
Travertine Cross Cut Silver
Limestone
Michelangelo Extra White
Arctic White
African Beige
Star Grey
Indiana Buff Select
Indiana Grey Select
Indiana Variegated
California Gold
Rustic Gold
Montauk White
Montauk Grey
Montauk Black
Travertine Cross Cut Scabas
Travertine Cross Cut Philadelphia
Travertine Cross Cut Country Classic

M.P.D. SMALL NINE*

Module percentage
  • 24”x24” = 50%
  • 12”x24” = 25%
  • 12”x12” = 25%
  • * Modular products with 6 mm joint (approx 1/4”).
Available colors
Bluestone Blue Select
Bluestone Full color
Thermal Bluestone Blue Select
Thermal Bluestone Full Color
Travertine Cross Cut White
Travertine Cross Cut Cream
Travertine Cross Cut Silver
Limestone
Michelangelo Extra White
Arctic White
African Beige
Star Grey
Indiana Buff Select
Indiana Grey Select
Indiana Variegated
California Gold
Rustic Gold
Montauk White
Montauk Grey
Montauk Black
Travertine Cross Cut Scabas
Travertine Cross Cut Philadelphia
Travertine Cross Cut Country Classic

M.P.D. SMALL TEN*

Module percentage
  • 12”x24” = 75%
  • 12”x12” = 25%
  • * Modular products with 6 mm joint (approx 1/4”).
Available colors
Bluestone Blue Select
Bluestone Full color
Thermal Bluestone Blue Select
Thermal Bluestone Full Color
Travertine Cross Cut White
Travertine Cross Cut Cream
Travertine Cross Cut Silver
Limestone
Michelangelo Extra White
Arctic White
African Beige
Star Grey
Indiana Buff Select
Indiana Grey Select
Indiana Variegated
California Gold
Rustic Gold
Montauk White
Montauk Grey
Montauk Black
Travertine Cross Cut Scabas
Travertine Cross Cut Philadelphia
Travertine Cross Cut Country Classic